Welcome to visit our offices:Kowloon Tong Head OfficeCauseway BayWan ChaiPrince EdwardMong KokMacau
 
  •  3 2x
  •  3 2x
  •  3 2x
  •  3 2x
  •  3 2x

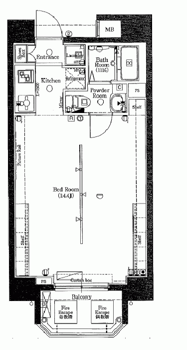
AXAS東京イーストレジデンス

24000000 yen

Management Fee:7100円、Repair costs:1900円

Traffic:JR総武線/亀戸駅 徒歩3分
Year of construction:17年
Area:壁芯 34.73m2

Surface reported back rate:

6.13%

Other Properties

Object Basic Information

Objects Detailed Information

Price

ROI

Object status

In several buildings