歡迎親臨查詢:觀塘旗艦店銅鑼灣灣仔太子旺角分店澳門辦事處
 
  •  3 2x
  •  3 2x
  •  3 2x
  •  3 2x
  •  3 2x
  •  3 2x

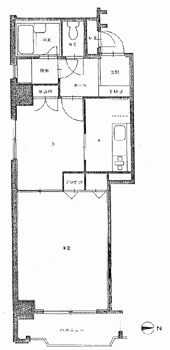
レインボー第二瓦町

630万円

管理手数料:7500円、修理費用:5000円

トラフィック:名古屋市営東山線/栄駅 徒歩12分
建設した年:40年
エリア:壁芯 43.65m2

表面はレートが戻って報告した:

11.43%

その他のプロパティ

基本情報オブジェクト

詳細情報オブジェクト

価格

投資収益率

オブジェクトの状態

いくつかの建物の中で