歡迎親臨查詢:觀塘旗艦店銅鑼灣灣仔太子旺角分店澳門辦事處
 
  •  3 2x
  •  3 2x
  •  3 2x

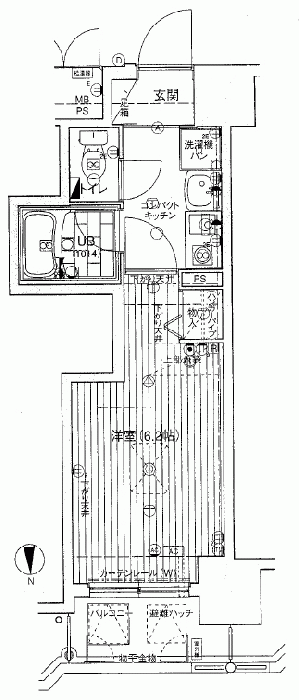
エステムコート大阪城南2

900万円

管理手数料:6220円、修理費用:1340円

トラフィック:大阪市営谷町線/谷町六丁目駅 徒歩2分
建設した年:25年
エリア:壁芯 19.75m2

表面はレートが戻って報告した:

7.62%

その他のプロパティ

基本情報オブジェクト

詳細情報オブジェクト

価格

投資収益率

オブジェクトの状態

いくつかの建物の中で