1750万円
管理费:4795円、修缮费:1010円
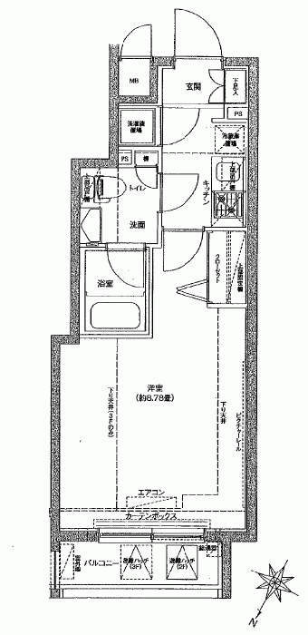
交通:JR埼京線/十条駅 徒歩13分 屋龄:17年 面积:壁芯 25.23m2
表面报回率:
エスコート芝浦EAST
ガラ・ステージ南大塚
スカイコート大森第5
ビバリーホームズ豊島園
藤和下北沢ハイタウンB棟※店舗・事務所タイプ※
日興パレス永代
价格
状态
参考数据
租金
管理费
修缮费
所在地
交通
格局
屋龄
出售楼层╱总楼层
面积
阳台面积
总户数
方位
建筑构造
土地权利
用途地域
管理型态
管理公司
土地面积
管理人
都市计画
设备
邻近设施
其他交通
建筑公司
备注