歡迎親臨查詢:觀塘旗艦店銅鑼灣灣仔太子旺角分店澳門辦事處
 
  •  3 2x
  •  3 2x
  •  3 2x
  •  3 2x

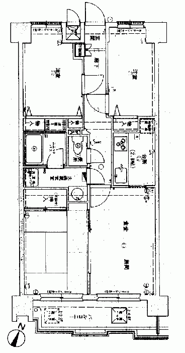
ワコーレ東浦和 A棟

1480万円

管理費:7500円、修繕費:11480円

交通:JR武蔵野線/東浦和駅 徒歩8分
屋齡:39年
面積:壁芯 62.7m2

表面報回率:

8.92%

相關樓盤

物件基本情報

物件詳細情報

價格

投資回報率

物件狀態

建築年數